Насосы
Установки повышения давления
Установки пожаротушения
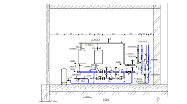
Блочные тепловые пункты
Шкафы управления
Частотные преобразователи
Компрессоры
Модульные компрессорные станции
Осушители
Ресиверы
Запчасти
РВД
Изготовление и Поставка шкафов управления
Проектирование и Монтаж инженерных систем
Ремонт и Техническое обслуживание компрессоров
Компрессоры ATLAS COPCO
Компрессоры OZEN
Компрессоры BLACK EDITION
Компрессоры AIRALLRUS
Модульные станции для компрессорного оборудования
Генераторы азота GEPROM
Осушители GEPROM
Ресиверы
Обратная связь
